欢迎光临昆山开发区皓跃泽电子商行官网!
10余年专注高精度各类密封件生产销售
全国咨询热线:18068078013
联系我们

手机:18068078013
联系人:柳晓可
邮箱:480150081@qq.com
地址 :苏州市昆山经济技术开发区盛晞路198号5号房
您的位置:首页 >> 产品中心 >> 液压油封
液压油封

YXD孔用密封圈 活塞单向密封 进口聚氨酷 PU

XD型孔用密封圈规格表

YXD 型孔用密封圈规格及沟槽尺寸表性能与用途YXD 型孔用密封圈采用进口聚氨醋(PU) 材料制作,密封性能几乎与进口件不相上下。用于活塞单向密封。、材质进口聚氨酷 PU。、工矿条件

工作压力:s40MPa;

工作温度:-35~+100C

工作介质:液压油(矿物油基)

往复速度:0.5m/s

四、设计标准

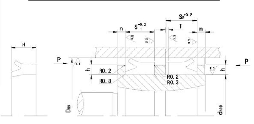
沟槽及产品尺寸、公差等均符合 JB/ZQ4264-86 标准五、标注及订货方法

标注示例:YXD10088

六、结构装置YXD孔用液压圈_看图王.jpgYXD孔用液压圈截面图_看图王.jpg


提交
在线客服
联系方式

热线电话:

18068078013

上班时间:

周一到周五

二维码
线